1/59 Glorious Promenade, Redbank Plains, QLD, 4301
- 2 BED
- 1 BATH
- 2 CAR
Low maintenance Stylish 2 Bedroom Villa - Easy Modern Living
Welcome to your dream home in the beautiful and vibrant suburb of Redbank Plains, Villa 1 59 Glorious Promenade proudly presented to you by ARUN CHHIKARA TEAM from Maya Realty who will be assisting you during your purchase.
This property is ideal for a wide range of buyers including
– An Investor looking for good return on investment
– Someone looking to downsize to a low maintenance residence
– First home buyer looking to get into the market
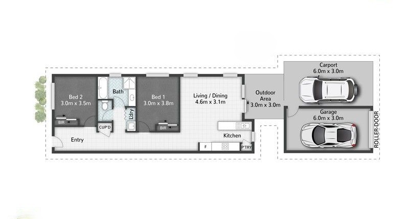
The property got 2 spacious bedrooms, a spacious bathroom with a bath, a single lock up garage with single carport & a fully fenced yard to enjoy breeze with tea/coffee.
Property Features include :
– 2 Generous sized, carpeted bedrooms with built-in robes
– Airconditioned, tiled, open plan kitchen, dining and living
– Modern kitchen with Gas cooktop and electric oven
– Plenty of cupboards/storage space
– Modern bathroom with separate bath and shower
– Separate toilet
– Separate laundry ( European Style )
– Security Screened doors
– Vertical Blinds
– Ceiling Fan in living area
– Great courtyard to sit out and enjoy the breeze
– Single detached remote controlled garage and carport from rear lane
– Easy access to Ipswich and Logan Motorway
– 3km to Redbank Plains Shopping Village
– 1.4km to Redbank Planes State School
– 2.2km to Redbank Plains State High School
– Close to bus stops, parks and bikeways
Tenancy – Tenants paying $420 per week – Lease in place till June 2025
Body Corp : Low Body Corp Fees – $460 per Quarter (Approx)
Council rates – $520 per Quarter ( Approx )
Early enquiries encouraged to avoid disappointment – Don’t miss out on the opportunity to secure this villa today!
CALL ARUN CHHIKARA ON 0427 860 066 FOR VIEWINGS.
* Approximately
* The pictures, floor plans and videos may have been digitally enhanced or may not show the correct condition and dimensions of the property.
* This property is being sold without a price and therefore a price guide cannot be provided. The particulars, no warranty is given by the seller or the agent as to their accuracy. We do not hold any responsibilities on information given, error in property ad etc. Interested parties should not rely on these particulars as representations of fact but must instead satisfy themselves by inspection/own research.
Read less