1033 Riverway Drive, Rasmussen, QLD, 4815

  • 3 BED
  • 1 BATH
  • 2 CAR

Charming Cottage Style Gem

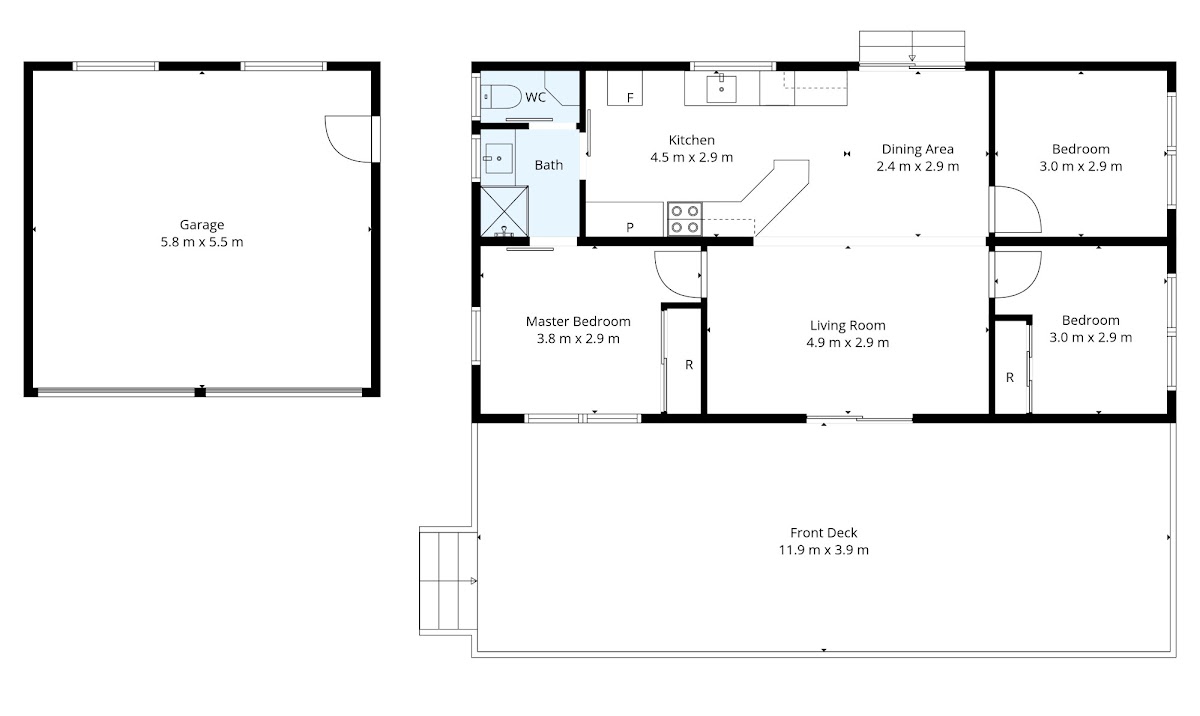
Located opposite beautiful, iconic Ross River, this charming cottage style gem is looking for a new owner to bring back a fresh new lease of life. Perfectly positioned on a 784 sqm allotment with ample room to the front & back with a fully fenced yard. Remote roller gate for ease of access to the powered 6 x 6m colourbond shed via a concrete driveway. This provides plenty of room to drive your boat or caravan into the property securely. Relax on the extra-large front deck which is complemented by the lush tall boundary trees giving you privacy while keeping in touch with your natural surroundings. A two-way bathroom providing a shared functional space is conveniently located off the main bedroom.
Imagine living in your own paradise across from a beautiful waterway. Offering extensive recreational parkways for walking, cycling, swimming spots including the ever-popular family centre of Riverway. Just throw in a line or two if you’re an avid fisherman or love water sports such as kayaking or skiing
So, if you’re looking to put your own style into a home this is a low cost, budget friendly option in tropical paradise.
It is within the catchment of Rasmussen State School and Thuringowa State High School. It has reliable NBN Fibre to the Premises and 5G mobile coverage.

– Built-in wardrobes to two bedrooms
– Airconditoning
– Two-way bathroom
– Dishwasher
– Security screen doors
– Extra large front deck for entertaining
– Fully fenced with remote roller gate for easy access.
– 6 x 6m colourbond shed with power
– 3 x 3m lawn locker
– Chicken pen
– 784 sqm allotment

For an inspection, please contact Grant from Davison @realty on 0413 984 703

Disclaimer: In preparing this information we have used our best endeavours through third party sources to ensure that this publication is true and accurate and accept no responsibility in respect to any errors, omissions, inaccuracies, or misstatements contained. Accordingly, all interested parties should make their own enquiries to verify the information provided.


Property Details
Property Type: Residential
Land Area: 784 SQM

Property Features
Air Conditioning
Built In Wardrobes
Deck
Fully Fenced
Outdoor Entertainment Area

Property Location