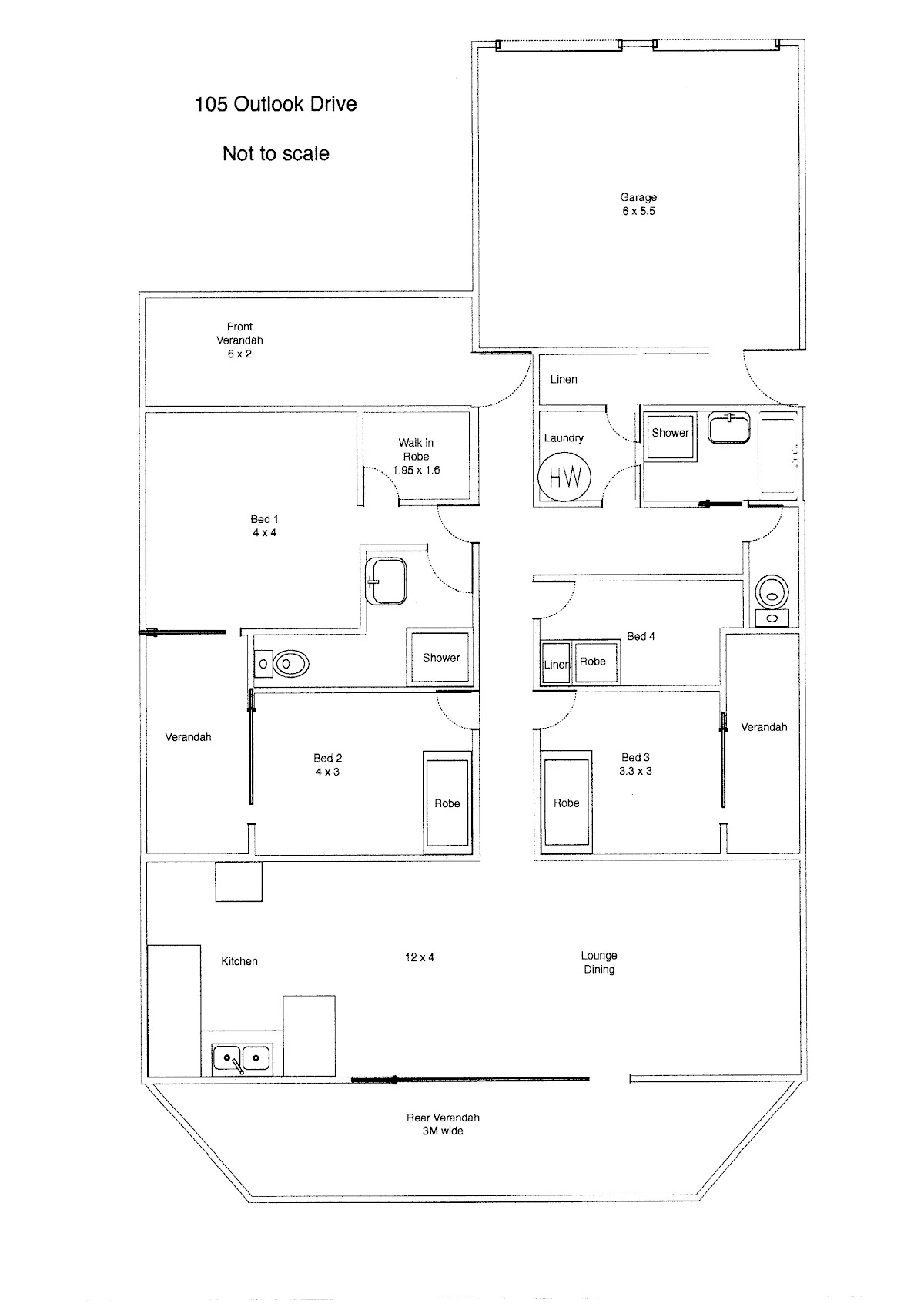
105 Outlook Drive, TEWANTIN, QLD, 4565
- 4 BED
- 2 BATH
- 1 CAR
THIS REALLY IS A HOME OF POSSIBILITIES
TIMBER FLOORS, HIGH CEILINGS
Be our guest to inspect this home that not only offers the new owner a cool green haven but the opportunity to add their own personality.
The property’s features include:
* 768 M2 block
* decks off bedrooms
* steel framed home
* double garage with internal access plus extra off street parking
* secluded bushland setting
* access to walkways, bike tracks, schools, playground, local shops and public transport.
The owner of this property has his eye on another so would like this one sold.
Call to arrange your inspection today.
Tony Watson
@realty
0403 180 828
Property Details
Property Type: Residential
Land Area: 768 SQM
Property Features
Water Tank
Built In Wardrobes
Dishwasher
Floorboards
Balcony
Deck
Fully Fenced
Remote Garage
Property Location