14 SANSOM ST, Woodville North, SA, 5012
- 3 BED
- 2 BATH
WHAT A RARE FIND HOME! SOLID AS A BRICK!
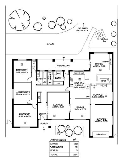
A rare approx. 947sqm block, Frontage & back 20.75m, sides 45.72m.
Built in 1981 with Solid Double brick, Facing West.
3 Extra large bedrooms
1 bath and a shower with 2 toilets
Formal lounge and separate formal dinning
Large family room with bar
Large single garage that would fit 2 cars inside.
Solid timber kitchen cupboards
Gas cooking with Hot water service
Main bath and toilet have been renovated, new polished floor boards, new oven, new tap wear & improved laundry.
New Ducted heating and cooling system
Remote alarm, deadlocks, auto sensor lights and new secured fence with roller shutters throughout all windows and doors.
Neat white rose front garden with dual driveway access
Wonderful alfresco entertaining or relaxing area overlooking the storage shed at the back with lots of established fruit trees and rooms for your children and pets to enjoy.
Call us today to inspect, Make an Offer and Move in!