2/41 Vivian Drive, Rokeby, TAS, 7019
- 3 BED
- 2 BATH
Brand new 3 Bedroom home - Private and peaceful - close to amenities
We are excited to offer this brand new home to market offering open plan living areas, dream kitchen and in the ever popular new homes area of Rokeby, close to the new Glebe Hill Shopping Centre.
Quality is assured with local Builders Taylor and Beeson completing the project from start to key handover.
First home owner incentives applies to this home for eligible purchasers, call Ben for further information.
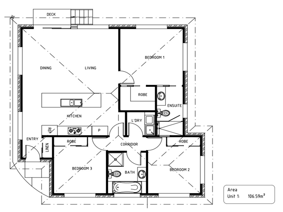
Nearing completion in December 2025, this house and land package offers every amenity for the growing family all on a generous 2 strata allotment with a good sized strata landholding.
– Master Bedroom with walk in robe and separate ensuite
– Second and third bedrooms are double’s with built in robes
– Large kitchen with stone benchtops
– Sundrenched lounge and kitchen
– Double glazed windows throughout
– Reverse cycle air-conditioning,
– 12 year structural quarantee
– Six star energy rated home
– LED lighting throughout
– Private rear yard
– Fully landscaped
– Fully fenced
Upon completion this home will be complete with appliances, blinds and floorcoverings throughout, you will only require a fridge, washing machine and furniture to settle into your new home!
For your peace of mind, this home offers little risk with only a deposit and settlement being purchase timelines, no staged payments to builders required, ready for settlement in late January 2026.
Contact Ben Palmer at @realty for further information.