2 Schoolhouse Road, Amamoor, QLD, 4570

$551,000
Sold on 6th September 2024
  • 3 BED
  • 1 BATH
  • 1 CAR

Location / Privacy / Affordability / Space

Nestled in the picturesque town of Amamoor, right on the edge of the Sunshine Coast Hinterland in the Mary Valley, this HUGE 7,778m2 property with a 3 bedroom timber home and an impressive array of mature gardens is waiting for someone to call it home. Situated less than a 45 min drive to almost anywhere on the Sunshine Coast, this property is all about location, privacy, affordability and space.

The main home on the property is an original Queenslander, serviced with town water, boasting high ceilings and generous room sizes, and is perfectly livable as is or as an opportunity to enhance its character and charm further.

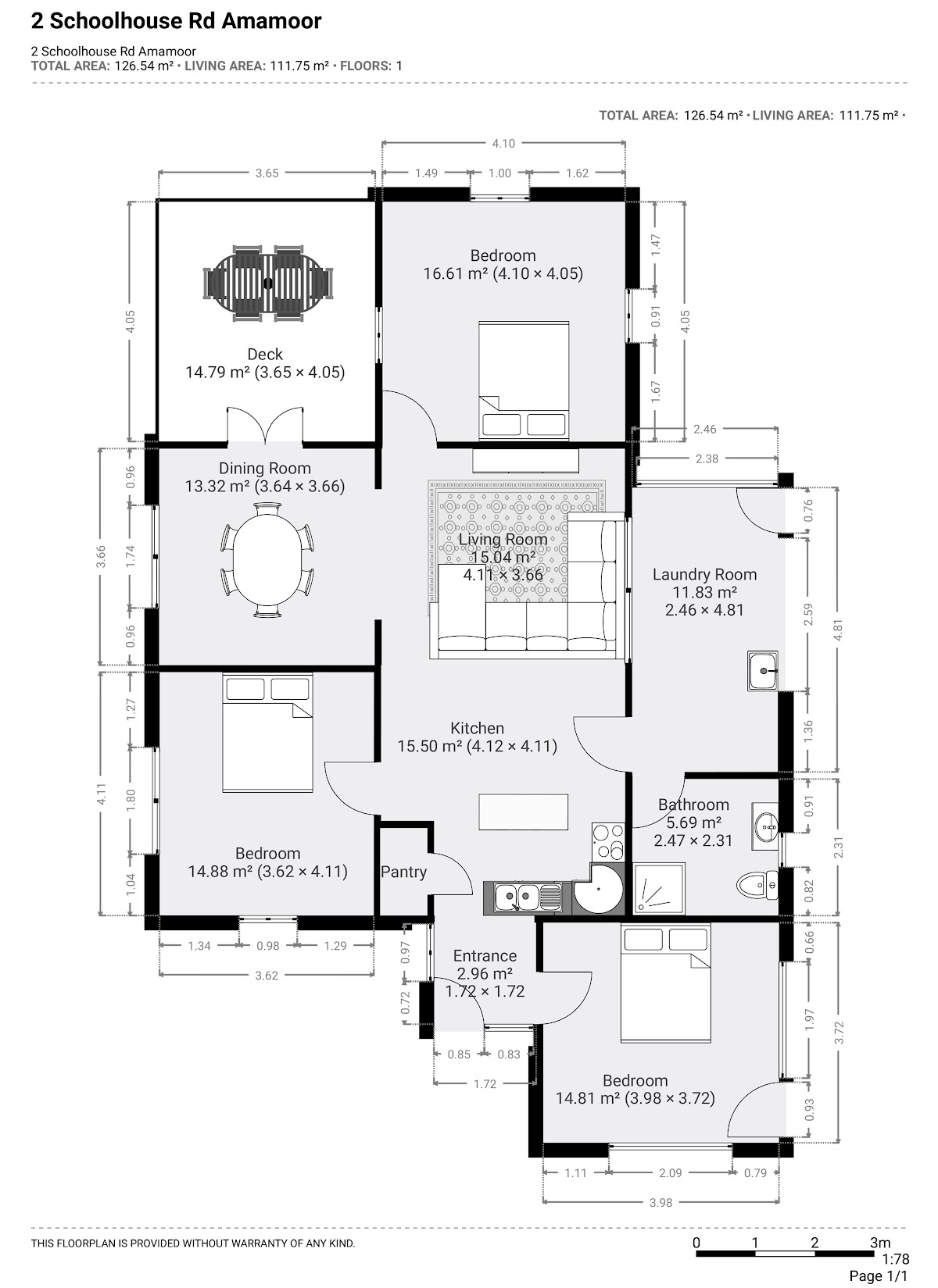
Currently tenanted on a month to month basis, the property has 3 generous sized bedrooms, multiple living rooms, a large decked outdoor entertaining area and rear ramp access to provide easier access to the home. This home is best suited for those looking for their 1st home purchase, a family looking for an affordable property with space for the kids, continuation as an investment property, or, for those who are willing to put in some elbow grease and restore this beauty, an opportunity to take advantage of potential capital gains.

Outside the home there is a large array of mature fruit and nut trees including Grumichama, Pecan x 13, Peach, Macadamia, Brazilian Cherry, Mulberry, Peanut, Mandarin, Mango x 2, Lychee, Pomegranate, Jaboticaba, Loquat, Lemon Myrtle and many more, not to mention a load of native flora.

There is a nice sized dam located at the lower part of the property that provides an ample water source for gardens. Walking around the property you will get lost in the many areas to explore and private spaces to simply get away from the hustle and bustle of life. A simple drive to the connection road puts you back on the Bruce Highway providing a fabulous and convenient commuting option which many have already taken advantage of in the area.

At this price and in such an extremely sought after location within the Mary Valley and with easy access to town, schools and shops, this property won’t last long.
Call Daniel or Graham now to organise an inspection!


Property Details
Property Type: Residential
Land Area: 7778 SQM

Property Features
Deck
Fully Fenced
Sheds

Property Location