27 Woomala Street, Woree, QLD, 4868
- 6 BED
- 2 BATH
- 4 CAR
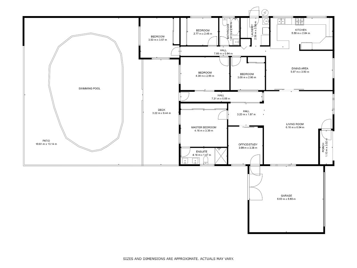
1879m2 block + 5 Bedroom Home + 1 Bedroom Granny Flat + 180sqm of Sheds
A substantial 5 Bedroom home set on 1879m2 block, with Granny Flat, 42sqm shed, 24sqm shed, 105sqm men’s shed and garden shed, plus a large inground salt water pool.
If you are seeking space for your family the main house has all you could wish for – five bedrooms with built-in wardrobes, 2 bathrooms, large lounge with separate dining and kitchen. Inground saltwater pool and large entertainment area.
Attached to the home you have a two-car lock-up garage with roller doors with drive through access to the back yard.
There is a Granny Flat/Guest Accommodation that comes complete with kitchen bench and sink, large single bedroom, shower, toilet, sitting room, laundry, private verandah and separate entrance. It adjoins a 42sqm and 24smq fully enclosed shed space with 2 x single roller doors. There is ample space for cars/trailers/boats.
Marble floors throughout the home and carpet in 4 of the 5 bedrooms. A new kitchen less than 3 years old with so much storage and bench space, gas cooking, large oven, marble benchtops and dishwasher.
The main bedroom has a large built-in wardrobe and spacious en-suite with double shower and double vanities.
The Pool Area
Enjoy the inground salt pool with wading area and centre island for the kiddies plus a BBQ area and plenty of space for lounge chairs for just relaxing.
The Entertainment Area
The entertainment area provides plenty of room for an outdoor lounge and a large dining table.
The Men’s Shed
15m x 7m. Divided into 2 parts with the front section with glass sliding door and security door entry, full lined, air conditioned, vinyl timber flooring. This is a great entertainment area with plenty of space for a pool table, darts board, bar, lounge and includes a undercover balcony at front with concrete floor. The back section of the shed has a roller door on the side, a dividing door between both sections, concrete floor, and air conditioning has been installed.
This home has easy access to the CBD, minutes to bus services, local shops, Woree State School, Woree State High School and Earlville Shopping Centre with Major Supermarkets and Services.
Additional features include:
-New security mesh screen doors
-Solar System
-Five bedrooms, all with built-in robes
-Air-conditioned throughout
-Double gate rear access
-15m x 7m shed
-7m x 6m shed
-6m x 4m shed
-One bedroom Granny Flat, with shower and toilet
-inground salt water pool with water fall
Contact Fiona Green At Realty to arrange an inspection. An Open Home will be scheduled.