29 JAMES STREET, Lang Lang, VIC, 3984

$440,000
Sold on 7th October 2016
  • 5 BED
  • 2 BATH
  • 4 CAR
Sold

UNDER OFFER

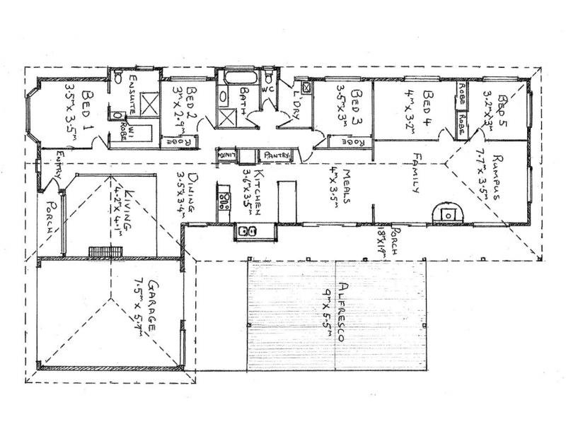
FOR SALE BY SET DATE 3rd July 2016 if not sold prior. Wow, this is one of the neatest and best presented quality homes you will see and only a few minutes walk to the town center and primary school. Perfect for a large family, day care or dual occupation with two zones of living. Set on a whopping 1085m2 (over 1/4 acre) block, this stunning home is approximately 28 squares of living with a 6 square entertainment area, five good sized bedrooms with a good size master bedroom with a full ensuite, walk in robe and ceiling fan, all other bedrooms have built in robes and ceiling fans. You will find the step down front formal lounge has a real open fire place and brick feature wall and steps up to the formal dining area, flowing through to the spacious kitchen with new cabinets and appliances including a 900ml stainless steel oven and range hood, dishwasher, wide breakfast bar and garden window views of the very attractive alfresco area. The meals area is spacious and leads through to the generous size rumpus room with wood fire heating and natural gas ducted heating.
The alfresco area (approx. 6sqs) is a beautiful outside living area which has been paved and is perfect for private entertaining. The double garage under roofline has roller door access from the alfresco area. The large block has plenty of space with a bungalow/workshop and is still large enough for children to play, space for veggie garden and outdoor activities. Agent available 7 days a week


Property Details
Property Type: Residential

Property Features
Ducted Heating
Open Fire Place
Built In Wardrobes
Dishwasher
Floorboards
Rumpus Room
Workshop

Property Location