35 Michigan Road, Kelso, NSW, 2795
TWO ACRE (8,529m2) DA APPROVED INDUSTRIAL LAND BATHURST
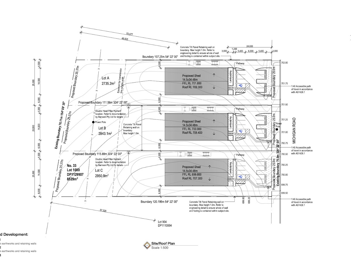
Versatile 3 lot subdivided industrial land at Kelso NSW 2795
For sale under the one line.
Lot 1, 33 Michigan Rd 2,950 m2
Lot 2, 35 Michigan Rd 2,843 m2
Lot 3, 37 Michigan Rd 2,735 m2
Total 8,529 m2
Located near the top of Michigan Rd Kelso industrial estate. These are awesome industrial blocks with power, water and sewer already connected. Enormous expense has already been invested to level each block and build retaining walls enabling the 3 lot subdivision. Buyers could use block as is or redevelop to suit their own requirements, combining the sites.
Each block is DA approved for a 500 sqm + shed with truck turning circle and onsite parking. Blocks are level with cement tilt slab constructed retaining walls on both sides. Front of each block is approx 25 m access and depth of block is approx 111 m deep.
The rear of site has an electrical easement. This is approximately 2250 m2 in total (or 750m2 for each block) . This has been levelled and may be used for staff parking, truck or vehicle turning circle or storage. This easement may not be built under and DA approval for each site reflects this.
SITE PLAN Available
BLOCK SIZE 8,529 sqm
ELECTRICAL EASEMENT 2, 250 sqm
LEVEL flat building block x 3
UTILITIES water, sewer, storm water, power are all connected. BRC diagrams available.
POWER 250 amp available
ZONING E4 General Industrial
DA APPROVALS DA Approval Number 2022/109
Construction of industrial Shed. Approval and DA approved plans available.
DA enables 500 sqm shed plus parking and hardstand.
CONTRACT Available
SITE INSPECTIONS – Available 7 days.
MORE INFO:
Mark Sullivan 0429 954 990
MSP / Atrealty
sully@atrealty.com.au
248 Howick St Bathurst NSW 2795