36 Siding Road, Warragul, VIC, 3820
PRICE REDUCED TO SELL
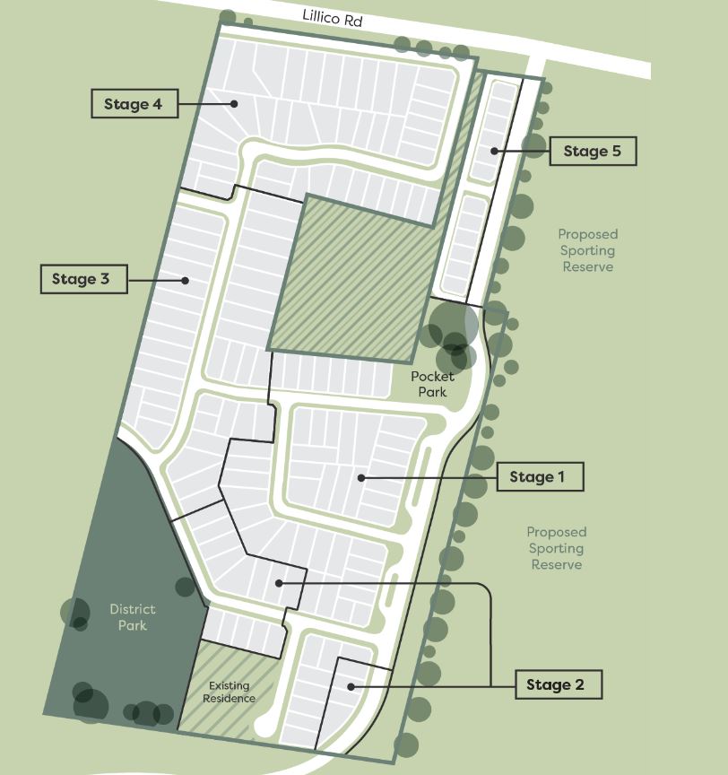
This 611m² corner block of land offers a fantastic opportunity to build your dream home in the peaceful, family-friendly ‘Parkside Estate’. The flat block provides ample space for outdoor features like a swimming pool, entertaining area, and gardens. It also has potential access to the backyard for a shed. Located in a master-planned community surrounded by farmland, the area promotes an active, healthy lifestyle and is close to local amenities, including shops, restaurants, educational facilities, parks, and transport. Key features include a proposed sporting reserve, district park, and pocket park. This is a rare chance to secure land in a sought-after location.
This is a rare opportunity to secure a new block of land in a popular location. You can make your dream home a reality and start creating a lifetime of family memories.
https://www.parksideatwarragul.com.au/
Don’t delay – call Mel today and come and explore the possibilities.
The information about this property has been supplied to us in good faith, while we have no cause to doubt its accuracy. Land and home dimensions and floor/site plans are supplied by third parties. Typing mistakes and omissions transposing can occur, we provide assistance but make no representation. Buyers must carry out their own due diligence.