5 New Street, South Grafton, NSW, 2460

services

Reduced to sell now!

Are you looking for a business on the move to take you out of your current career path and to set up for semi retirement? Currently the owner provides administration of this business remotely and the core training is provided by local sub – contract staff. With KSB’s strong brand in the industry over many years and servicing the Northern Rivers to Coffs Harbour and beyond there is still potential for growth through expansion of the training services.
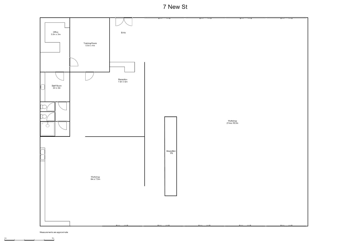
The premisses which is offered as leasehold is also available for purchase and was purpose built with heavy vehicles in mind and provides safe storage with maintenance and service facilities onsite including drive over pit and wash down area.

Heavy vehicle knowledge is not a necessity to drive this business however to act as an additional trainer or support the current trainers offers growth potential. The sale includes all the current fleet of training vehicles including forklift, consumables and all the equipment to conduct the business. A Registered Training Organisation works hand in hand to lodge final competency assessments to the Transport Department.
So whether your are a trainer, truck or bus related operator or just a straight out business manager this business is ready to grow.
Rent paid by the business is currently $5400 + GST PCM or the freehold property is offered for sale by negotiation. Set on 1644 sqm of land zoned B3 commercial core with street and laneway providing dual access to approximately 535 sqm of office and workshop area.

Please contact Ron Plowman for further details of the business & freehold on 0422 702 214.
Set in the beautiful Clarence Valley Region of NSW, this small town offers a picturesque lifestyle for those seeking the perfect balance between work, urban convenience and rural peace.
** Grafton is centrally located between Coffs Harbour and Yamba in what is shaping up to be the new corridor of interest. With Grafton, Yamba and Coffs Harbour providing the 3 major hubs along an approximate 125km of unspoilt coastline. Along with several coastal villages, some just 35 minutes from Grafton, offering unspoilt beaches and rivers with an ideal climate in our region. A friendly country style town steeped in history and equally accessible hinterland wonders, those seeking a tree and sea change should check it out, I did and this business and premisses will see you well invested in this growing town.

** Zoned B3 Commercial Core.
Please note that given the zoning and business, finance lenders may impose different lending criteria. We encourage interested purchasers to investigate such criteria with their lender or broker prior to any inspection request.
Don’t miss out on this unique opportunity – contact us today to find out more!


Property Details
Property Type: Business

Property Location