7 Sheridan Drive, FLAGSTONE, QLD, 4280
- 3 BED
- 2 BATH
- 1 CAR
End Corner Terrace Home – No Body Corporate! SUBMIT ALL OVERS
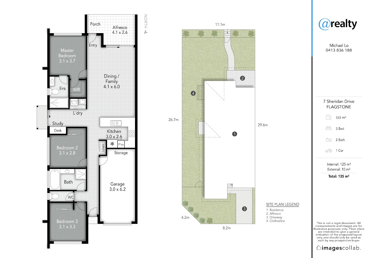
Situated in the heart of Flagstone, this corner block terrace home is perfect for investors or homeowners seeking modern, low maintenance living without body corporate fees. Built in 2022, this contemporary home is set on a 333m² freehold block, offering comfort, convenience, and good investment potential.
Investment Highlights:
• Currently tenanted at $490 per week until 19/06/2025
• Rental appraisal: $500 – $540 per week
• Council and water rates: Approximately $4,400 annually
• Strong rental demand in a high-growth area
Property Features:
• Three spacious bedrooms, including a master with ensuite
• Open plan living and dining with a functional layout
• Modern kitchen with quality appliances and ample storage
• Split-system air conditioning for year-round comfort
• Single lock-up garage & storage space
• Low maintenance 333m² block
• No body corporate fees
Prime Flagstone Location:
• Close to schools, shopping, parks, and future developments
• Easy access to major highways and transport links
• Thriving, family-friendly community
• With strong population growth, new developments, and increasing rental demand, Flagstone is a high-growth corridor attracting both investors and homeowners.
This is a rare opportunity to secure a modern, hassle-free investment or home in Flagstone.
Contact us today to arrange an inspection.