986 Skyline Road, Yarra Glen, VIC, 3775

$1,250,000 - $1,350,000
  • 4 BED
  • 2 BATH
  • 5 CAR

4 Bedroom Beauty above Yarra Glen - Including a Self Contained Studio - Fall in Love

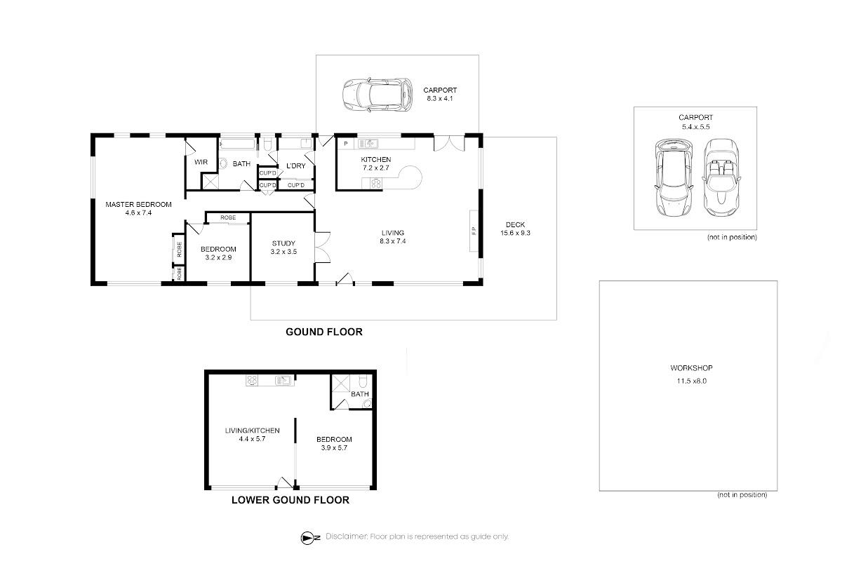
The amazing views are just the beginning, this stunning double-storey residence at 986 Skyline Road offers the perfect blend of country charm and modern convenience in Yarra Glen’s prestigious wine country. Set on an expansive 1.14ha (2.817 acre) block, this impressive property offers 4-bedroom, 2-bathroom and presents an exceptional opportunity for those seeking a lifestyle change .

Step inside to discover beautiful floorboards that flow throughout the home, creating warmth and character at every turn. The thoughtfully designed layout features a study perfect for working from home or forth bedroom, while the spacious living room provides endless possibilities for family entertainment or relaxation. Bedrooms with Built-in wardrobes ensure ample storage, and the modern functional kitchen comes complete with a dishwasher and lots of bench space for effortless meal preparation.

This private home is barley visible from the street which is perfect for your privacy, The home’s double-storey design maximises space, featuring a self contained studio – a must for visiting family, Abnb or a shared arrangement.

The outdoor offerings are truly exceptional:
• Expansive deck and balcony areas perfect for entertaining
• Dedicated outdoor entertainment area
• Secluded position ensuring complete privacy and security
• Drive through circular carport convenience
• Additional sheds for storage or workshop space

Located in the renowned Yarra Glen region, you’ll be immersed in Victoria’s premier lifestyle region, just 49km north-east of Melbourne’s CBD. This charming town is steeped in history, being home to the first grape vines planted in the Yarra Valley in 1838. The area offers a rich cultural heritage with the National Trust-listed Yarra Glen Grand Hotel and its distinctive four-storey Italianate tower serving as a local landmark.

Yarra Glen provides excellent recreational opportunities with the local Australian Rules football club competing in the Yarra Valley Mountain District Football League. Horse racing enthusiasts will appreciate the Yarra Valley Racing Club’s regular meetings, including the prestigious Yarra Glen Cup in March, while harness racing adds to the town’s sporting calendar.

This property represents more than just a home – it’s an invitation to embrace the Yarra Valley lifestyle. Whether you’re seeking a permanent tree-change, a weekend retreat, or a solid investment opportunity, this exceptional residence delivers on all fronts. The combination of spacious living, modern amenities, and premium location creates a package that’s sure to impress the most discerning buyer.

Don’t miss your chance to secure this remarkable property in one of Victoria’s most sought-after regional destinations.
– 4 Bedrooms
– Endless Views
– Amazing Lifestyle Opportunity
– Self Contained Studio
– Large Sheds
– Double Glazed Windows
– Solar Panel System


Property Details
Property Type: Residential
Land Area: 2.81 Acres

Property Features
Air Conditioning
Gas Heating
Open Fire Place
Broadband Internet Available
Built In Wardrobes
Dishwasher
Double Storey
Floorboards
Rumpus Room
Study
Balcony
Deck
Fully Fenced
Outdoor Entertainment Area
Remote Garage
Sheds

Inspection Time

No inspections are currently scheduled. Contact the agent to arrange an appointment.


Statement of Information

Property Location